NEUBAU EINFAMILIENHAUS, APPITALSTRASSE, AU (ZH)
Ausführung: 2016-2018
Rolle im Team: Projekt Architekt bei Swisshaus Hochdorf AG
Bauherrschaft: privat
Objektadresse: Appitalstrasse 52, 8804 Au
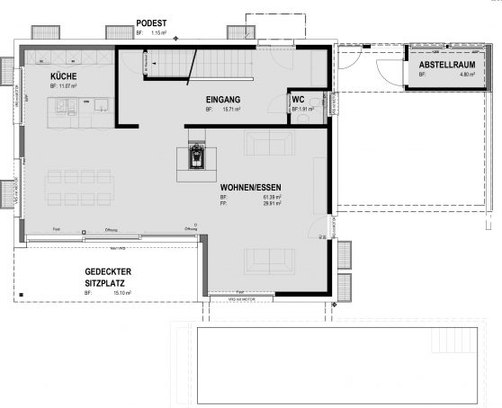
Bruttogeschossfläche: 392 m2
Gebäudevolumen SIA 416: 1293 m3
Typ: Einfamilienhaus
Energiestandard: Minergie-Zertifiziert
Verfahren: Direktauftrag
Leistungen: Gesamtplanung, Gesamtleitung
Das Einfamilienhaus befindet sich auf einem Grundstück, von der einen Seite ist sie umgeben von einem Wohngebiet und von der anderen Seite vom Wald. Die Lage und die Nähe zum Wald haben die Ausrichtung des Projektes beeinflusst. Durch ein sauberes und simples Design, welches durch die fliessende Verteilung der Räume hervorsticht, richtet sich das Gebäude zum umliegenden Wald. Die im OG liegende Terrasse und das überdachte Bereich im Erdgeschoss profitieren besonders von dieser Ausrichtung.Der Kunde hatte eine sehr detaillierte Vorstellung, die zu besonderen Elemente geführt hat, wie z.B. eine Minergie-Konstruktion sowie Vollgeschosshöhe Fenster und Türöffnungen. Die marktaktuellsten Tür- und Fenstermodelle mit minimalem Rahmen wurden eingesetzt, um keine Beeinträchtigung in der visuellen Kommunikation zwischen dem Inneren und dem Äußeren des Hauses zu haben.










