NEUBAU MEHREINFAMILIENHAUS, UNTERFELD, Buochs (NW)
Ausführung: 2015-2020
Rolle im Team: Projekt Architect bei Swisshaus Hochdorf AG
Bauherrschaft: privat
Objektadresse: Unterfeld 10, 6374 Buochs
Bruttogeschossfläche: 1007 m2
Gebäudevolumen SIA 416: 3013 m3
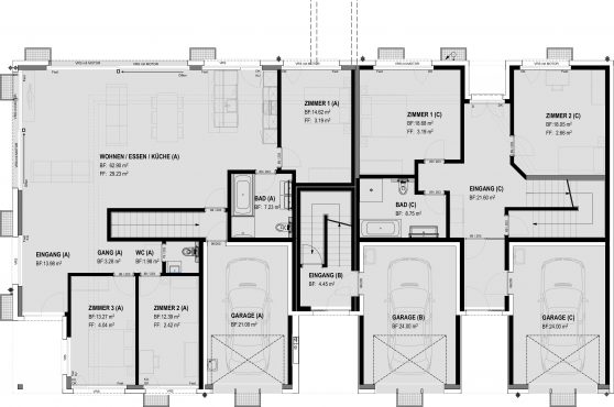
Typ: Haus mit 3 Wohneinheiten
Verfahren: Direktauftrag
Leistungen: Gesamtplanung, Gesamtleitung
Das Projekt: der Abriss eines bestehenden Hauses für den Neubau eines Gebäudes mit 3 Wohnungen. Die grossen Terrassen sowie die grossen Fenster, die viel Lichteinfall ermöglichen, machen die die Lage am Vierwaldstättersee sehr ausgewöhnlich. Der Grundriss ist wie folgt aufgeteilt: eine Wohnung im Erdgeschoss, eine zweite Wohnung im ersten Obergeschoss und eine dritte Wohnung, die sich über zwei Etagen streckt und an die anderen zwei Wohnung angrenzt. Das Ergebnis ist ein einzigartiges und homogenes Gebäude ohne die oben beschriebene Trennung.







