RENOVIERUNG EINES KLEINES INNENHOF DER KARTHAUS VON PADULA
Akademisches Projekt 2010
Objektadresse: Karthaus von Padua, Italien
Dieses akademische Landschaftsprojekt besteht aus einer konzeptionellen Einwirkung in einer Mönchszelle. Die experimentfreudige Ideen basiert auf ein Konzept ausgerichtet auf die Selbstbeobachtung, Meditation und Zurückziehung.
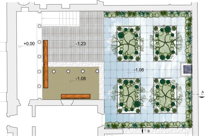
Das Kloster befindet sich in Italien. Die klassische italienische Gartenkomposition wurde für diese Aufgabe ausgewählt. Der geschlossene, in vier aufgeteilter Garten unterstreicht den kleinen Brunnen an der Wand.
Als Raum der Meditation und Abgeschiedenheit kann man einen Rückzug von allen natürlichen Elementen erleben. Den Boden nicht betreten, die Vegetation nicht berühren, nur die visuelle Bindung ist gegeben. Die gesamte Bodenfläche wird durch Glasscheiben vom gegenwärtigen Boden abgehoben und somit das Mikroleben darunter beobachtet werden kann. Der vierteilige Garten ist auch durch Glaswände umschlossen, sodass man die gegebene Vegetation im Inneren beobachten kann.
Um die vorhandene Wand um den Garten zu verkleiden, die ästhetisches nicht ansprechend ist, wird durch ein Metallgitter eingesetzt. Ein Spalt zwischen Wand und Gitter lässt zu, dass mit indirektem Licht aufgewertet wird.
Das Ergebnis ist ein Garten mit klassischer Komposition. Ein beschaulicher Garten, wie es in einem Kloster erwartet wird. Zeitgenössische Elemente wie Glas und Metall wurden eingesetzt, um sichtbare, aber unantastbare Empfindungen zu erzeugen und das Meditationserlebnis zu verbessern.




