HAUSGARTEN GIOVANNI SERRANO, PUGLIA
Akademisches Projekt 2010
Objektadresse: Puglia, Italien
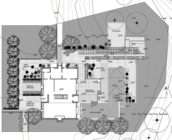
Vorschlag für einen privaten Garten in einem steilen Gelände nahe der Adria.
Eine akademische Aufgabenstellung, welches sich um die Schaffung eines privaten Gartens dreht, der die gegenwärtige Hausarchitektur verbessert und die Geländegeographie nutzt.
Die Gartenkomposition reflektiert die wichtigsten architektonischen Richtlinien des heutigen Hauses: die Achsen, die Aufteilung zwischen volle und leere Flächen, vertikale und horizontale Linien, die den Garten in die Unendlichkeit des Meeres projizieren.
Wasser ist im diesen Projekt allgegenwärtig: Künstliche Wasserspiegel, Kaskaden, Infinity-Pool. All diese Elemente in Übereinstimmung mit umgebende Landschaft.
Der neue mehrstufige Bereich bietet eine verschiedene Möglichkeiten für die Nutzung und erweckt ein dynamisches Empfinden sowie verschiedene Eindrücke.





