NEUBAU EINFAMILIENHAUS, ZIHLSTRASSE, BEINWIL AM SEE (AG)
Ausführung: 2014-2015
Bauherrschaft: privat
Objektadresse: Zihlstrasse 53, 5712 Beinwil am See
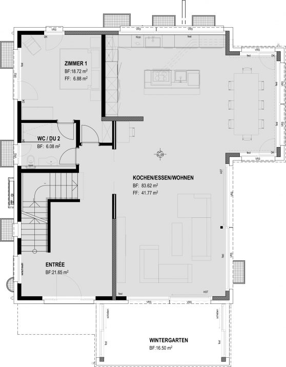
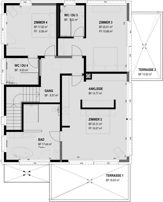
Bruttogeschossfläche: 462 m2
Gebäudevolumen SIA 416: 1459 m3
Typ: Einfamilienhaus
Energiestandard: Minergie-Zertifiziert
Verfahren: Direktauftrag
Leistungen: Gesamtplanung, Gesamtleitung
Die Kunden waren sich dem Potenzial der geografischen Lage des Grundstückes bewusst und wollten eine architektonische Lösung, welche die Aussicht auf dem Hallwilersee begünstigte. Die Konstruktion ist ein Zusammenspiel aus einfachen Volumen, welches im Erdgeschoss die Raumaufteilung beeinfluss und im Obergeschoss grosse Terrassen ermöglicht.










