4 EIGENTUMSWOHNUNGEN, HUELVA
Wettbewerbung: 2006
Bauherrschaft: privat
Objektadresse: Huelva, Spanien
Geschossfläche: 27.400 m2
Typ: 360 Wohneinheiten
Verfahren: Wettbewerb auf Einladung
Leistungen: Gesamtplanung
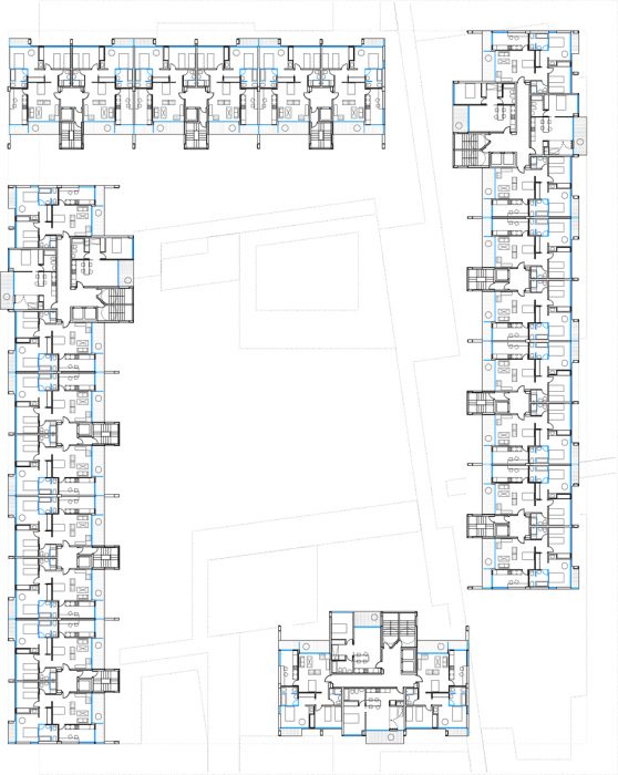
Wettbewerb für die Erbauung von Wohnblöcken für die Stadterweiterung der Stadt Huelva.
Der Vorschlag: Erschaffung von 4 Wohnvolumen um einen zentralen Gemeinschaftsraum herum, bestehend aus:
76 Einheiten 2 Zimmerwohnung
30 Einheiten von 3 Zimmerwohnungen
10 Einheiten von 4 Zimmerwohnungen
4 Einheiten von 5 Zimmerwohnungen
Gemeinschaftsgarage für 550 Parkplätze










